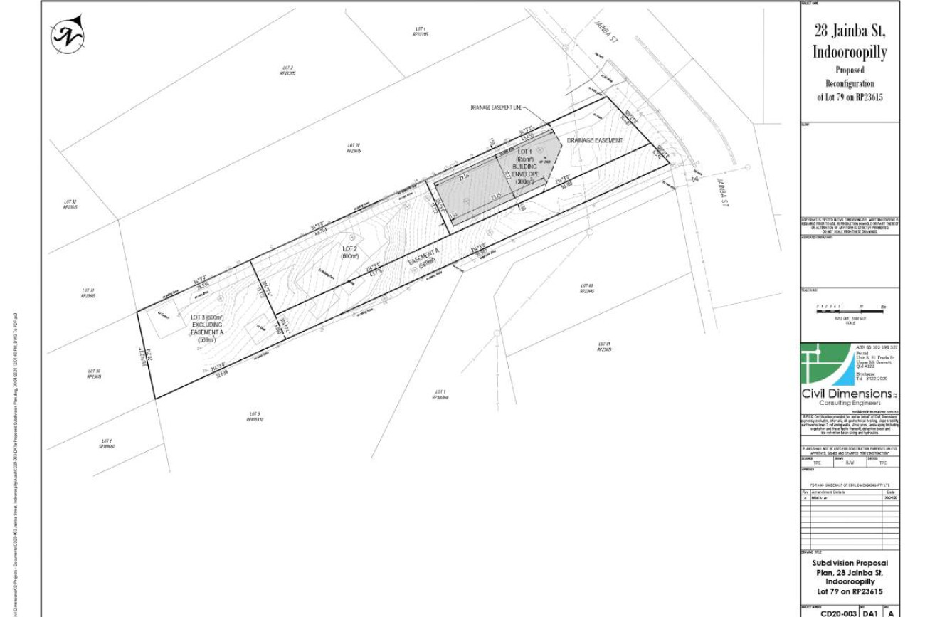
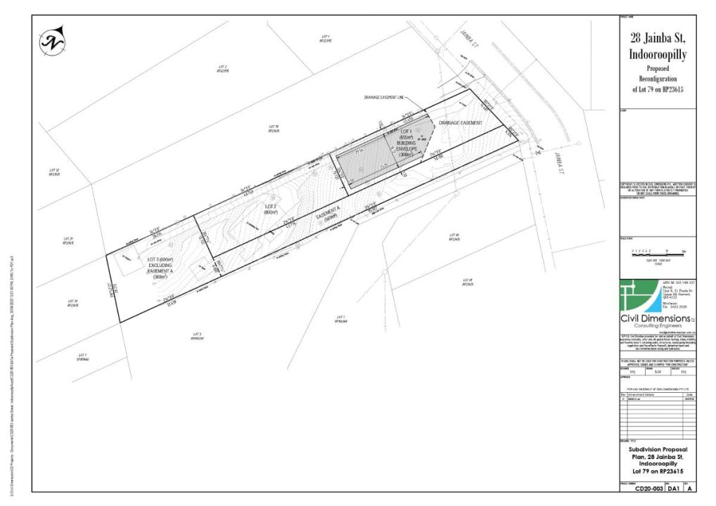
Location: One of Brisbane’s most desirable and well established inner-city suburbs.

Scope: This development involved development approval of a 3 Lot Subdivision and the sale of each Lot.

Contact

Stay Connected

Contact